

PROJECT: ISLAND COVE HOTEL & CASINO
LOCATION: ARECIBO, PR
TYPE: HOSPITALITY
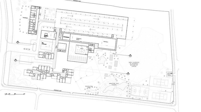
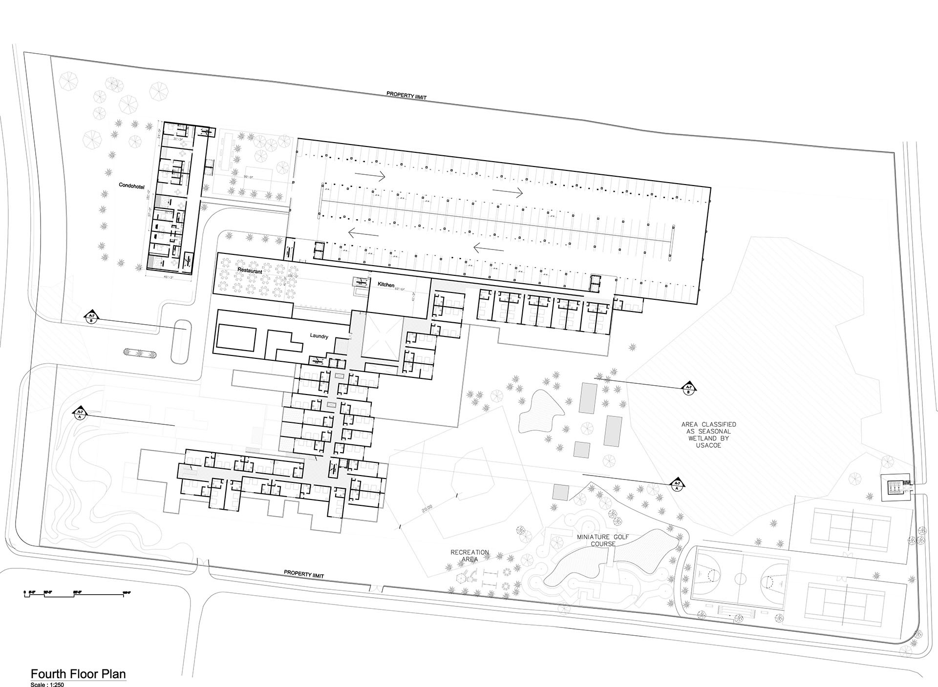
ISLAND COVE HOTEL encompasses a magnificent hotel and casino situated in front of an immense beachfront in Arecibo. This impressive development seamlessly integrates its size with its residential and rural surroundings, offering a luxurious and immersive experience for visitors and residents alike.
In collaboration with RVM Engineering Group.


















