

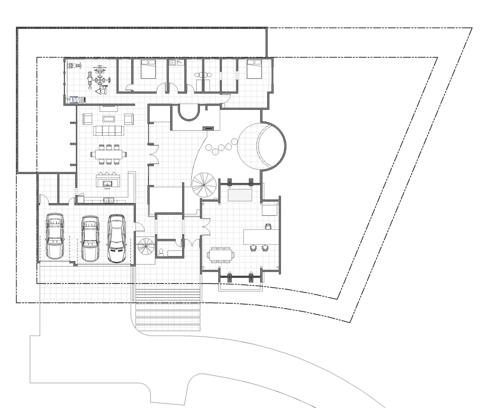
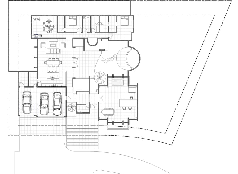
PROJECT: HORIZON HOUSE
LOCATION: CUPEY, PR
TYPE: RESIDENTIAL
HORIZON HOUSE is an elegant and discreet home organized around an interior patio, which houses a terrace and spa. This allows residents to get in contact with the outdoors while in a safe and private environment.












